Economie

Mise en location de trois lots dans les bâtiments de la gare de Baisieux

Image
Gare de Baisieux
Publié le 30.01.2026

Place de la Gare est une démarche de la SNCF qui permet à chacun de proposer un projet pour redonner de la vie aux gares et y développer des services de proximité utiles à tous.
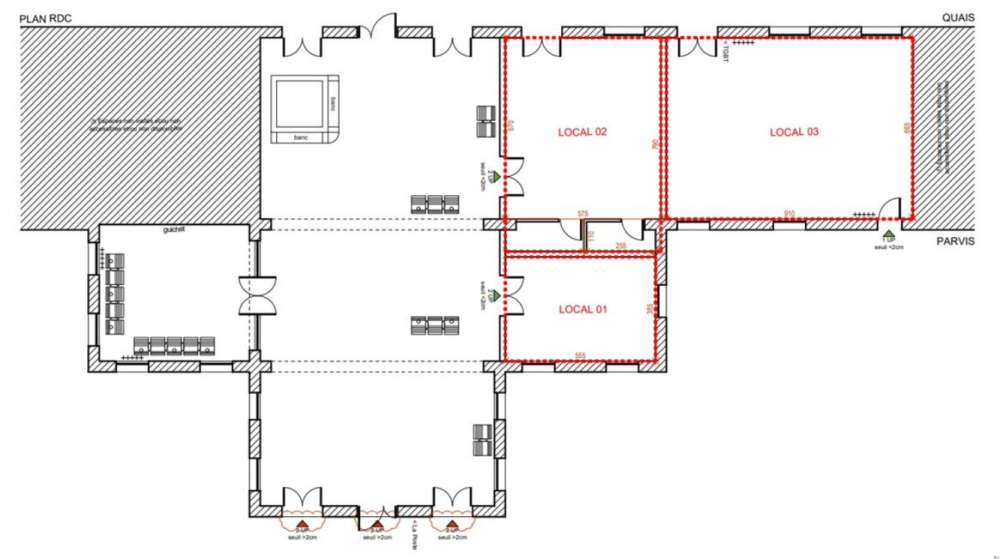
Dans ce cadre, nous vous partageons ci dessous trois annonces concernant la mise en location de trois lots dans les bâtiments de la gare de Baisieux.


Gare de Baisieux - 59780 | Place de la Gare Territoires

Gare de Baisieux - 59780 | Place de la Gare Territoires

Gare de Baisieux - 59780 | Place de la Gare Territoires
 



Image
Plan location gare